Anteproyecto, Proyecto y Dirección de obra | Trabajo realizado en conjunto con Venner Studio.
Fotos: Juan Amorelli
Para el desarrollo de este proyecto, se partió del concepto “la rebeldía de volver a las bases”, idea central de la nueva línea comunicacional de la marca, con el objetivo de que esta premisa funcione como guía para el posterior trabajo, entendiendo “las bases” como aquellos productos básicos argentinos de jean y cuero que destacaban por su calidad en los 90’s. Los elementos propios de la confección, como el proceso de creación en el taller y los materiales textiles se hacen presentes a través de distintas formas —pinturas, mobiliario, ambientaciones, exposición de prendas, cartelería— descontextualizándolos para darles nuevos usos y entendiéndolos como parte de la identidad marcaria.
Se propuso crear un sistema identitario que pueda ser singular, replicable y adaptable a través de tres ejes: pinturas, mobiliario y decoración. Las pinturas del Arq. Giuseppe Lioi trascienden el rol de mural e interactúan con los productos y el equipamiento del local: si bien pueden aparentar una composición abstracta, proponen una temática conceptual —con la paleta de colores de la temporada como vehículo— entorno a los elementos de las prendas, dando pie a pensar en recursos análogos para el resto del sistema. En la búsqueda por vincular visualmente el principio con el fin del proceso de confección, se montó una estructura de carreteles, ojales e hilos (trabajando con el principio de escala y sobredimensionando sus magnitudes) que se entrelazan para conformar un tejido de exposición de prendas. De esta misma manera, se elaboraron “botones” de jean que funcionan como terminaciones para el mobiliario o como percheros de pared. Por último, el uso de cinturones y denim como elementos decorativos y expositivos resignifican su uso cotidiano.
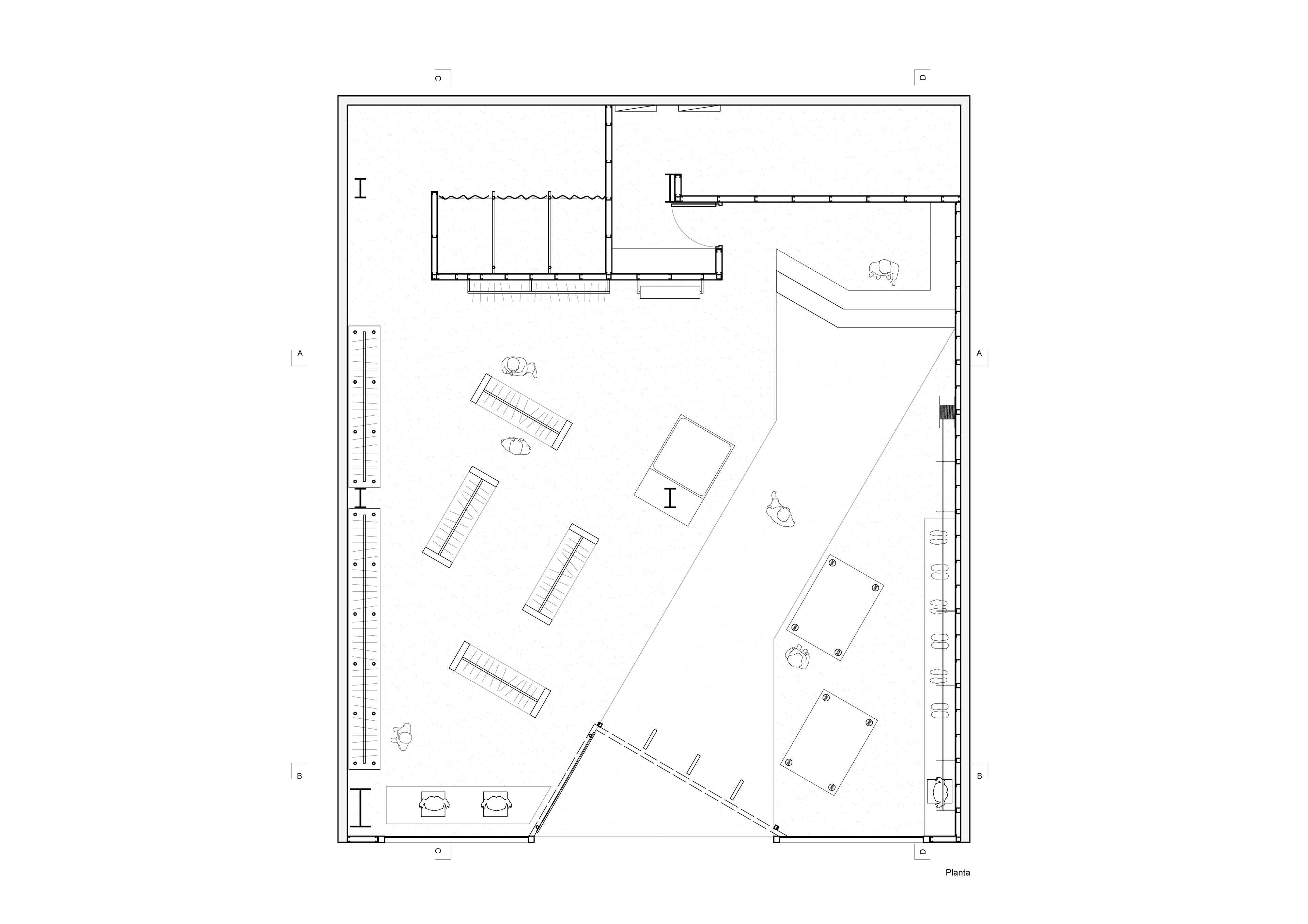
El diseño del presente local partió del análisis del flujo circulatorio del centro comercial para favorecer el ingreso, la exhibición de productos y resolver el problema que significaba la preexistencia de una columna de grandes dimensiones en el centro del espacio. Por ello, se lateralizó el mostrador generando una direccionalidad en diagonal a 30º (materializada en el piso y en el espacio aéreo con elementos colgantes) que origina dos sectores virtualmente separados. Por una parte, esto permite una gran vidriera ampliada en el lateral del local que se enfrenta con la diagonal, mientras que se compensa con una mayor carga de prendas en el sector opuesto. Por último, se prestó real atención a la privacidad que requieren los ingresos a los probadores y al depósito evitando una visual directa desde los espacios principales y exteriores.
Volver al principio