Anteproyecto, Proyecto y Dirección de obra | Trabajo realizado en conjunto con Venner Studio.
Fotos: Juan Amorelli
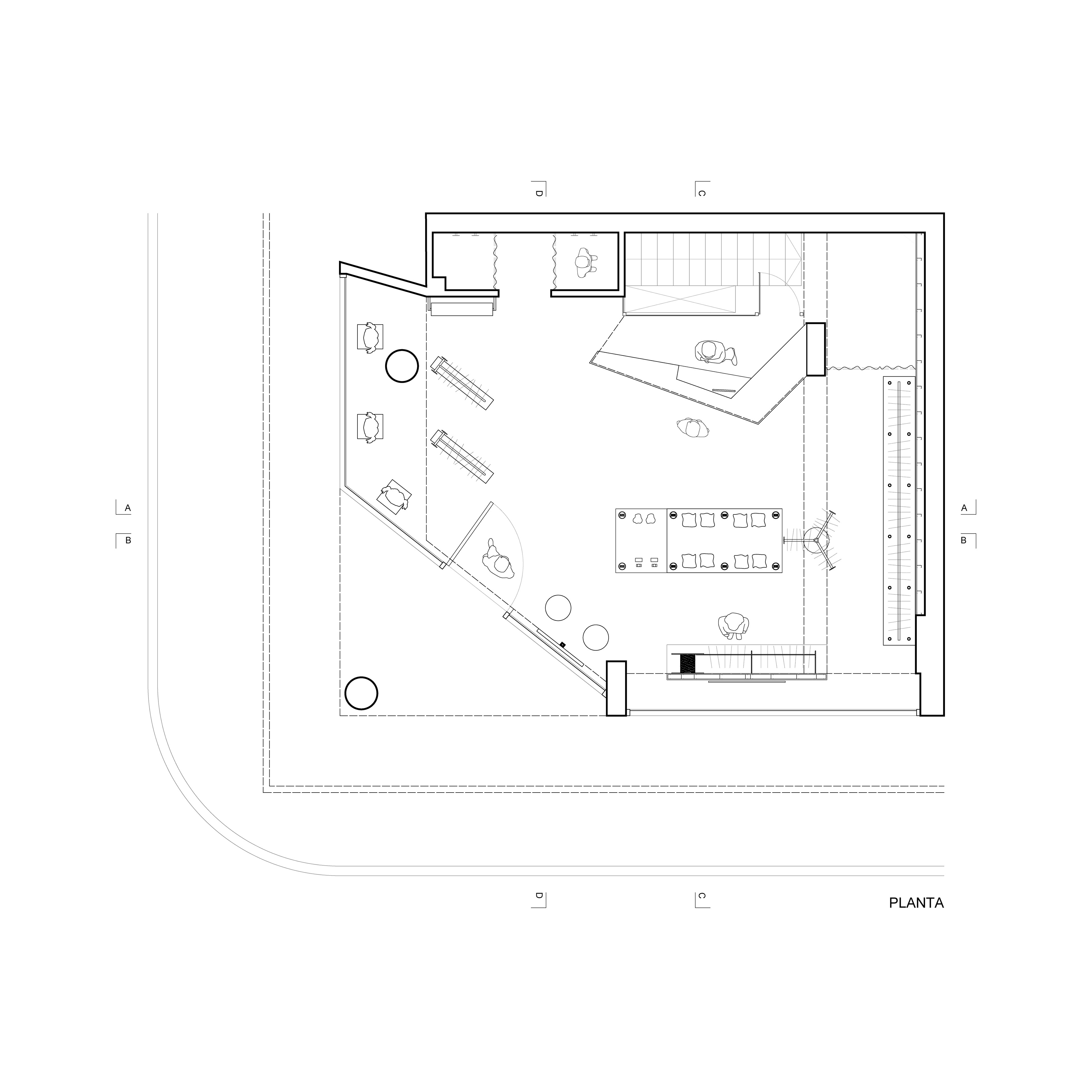
El diseño de este segundo local de indumentaria proyectado para NASA es parte de un proyecto integral bajo el concepto “la rebeldía de volver a las bases”, idea central de la nueva línea comunicacional para la marca. Por lo tanto, se trabajó aplicando el sistema identitario —retazos de jean, objetos de confección, elementos de prendas, mobiliario, pinturas con su debida paleta cromática, iluminación, etc.— adaptándolo a las nuevas características del emplazamiento; superficie pequeña y gran exposición de marca. Por ello, se decide utilizar las vidrieras no solo para exhibir prendas, sino también para comunicar a los transeúntes la nueva presencia de NASA con local exclusivo en el centro de la ciudad de Rosario. Así, mediante una única operación se resuelven ambas cuestiones: se proyecta un tabique sobre la vidriera de calle Pte. Roca revestido en retazos de jean, con el logotipo como protagonista; mientras que, del lado interior del tabique, se pintó el mural interactivo que permite ampliar la superficie de exhibición de prendas dentro del local.
En cuanto a la distribución interior se pensó en una circulación perimetral que rodea una gran mesa expositora de diferentes niveles. Además, el mueble mostrador no solo responde a la logística de venta, sino que, gracias a su geometría, minimiza la interferencia en la circulación y funciona como recibidor enfrentándose al ingreso por la ochava, estableciendo una rápida comunicación entre visitante y vendedor.
Volver al principio