Anteproyecto, Proyecto y Dirección de obra | Trabajo realizado en conjunto con Venner Studio.
Fotos: Francisca Sagristá
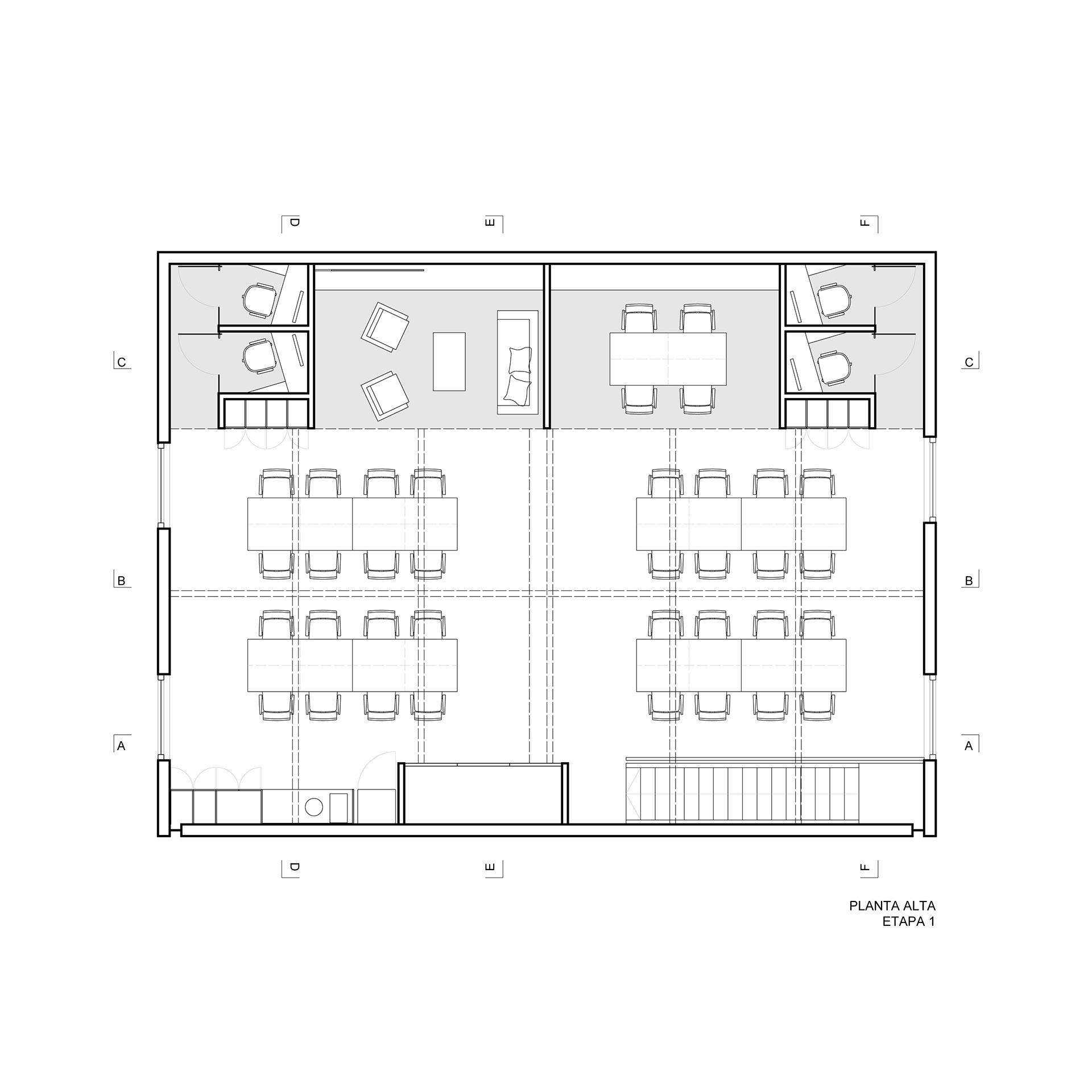
El proyecto para las oficinas de Zafirus —desarrolladores de soluciones tecnológicas para la salud— consistió en la remodelación de un espacio de 230m² divididos en dos plantas, ocupados previamente por otra empresa dentro del Polo Tecnológico de Rosario.
El proceso de diseño se desarrolló a partir de dos ejes claves: por un lado, el aprovechamiento de los elementos pre existentes para una rápida y económica ejecución, y por el otro, el manual de la nueva identidad marcaria, para así lograr materializar los valores de la empresa.
Para la primera etapa se priorizó anexar nuevos puestos de trabajo en planta alta, desarrollando un área que potencia la geometría simétrica de la cubierta y que, a modo de mamushka, compone un recinto para salas de reuniones y videollamadas, segmentando enfáticamente el salón a partir del uso radical del color azul.
El rombo como elemento geométrico se vuelve fundamental. Se parte de un cuadrado, que representa solidez y estabilidad, pero al rotarse 45° adquiere un carácter dinámico y ágil, reflejando la personalidad de la marca: una empresa firme en sus decisiones, sustentadas en datos, pero a la vez flexible y veloz en su capacidad de acción. De esta manera, se hace presente en luminarias, mobiliarios y yesería incorporándose de manera lúdica.
Por último, cabe destacar la utilización de los “corazones de luz” —icono del isotipo — que funcionan como un guiño al campo de la salud, recordando que la innovación tecnológica de Zafirus está siempre al servicio de las personas.
Volver al principio